En todos estos años hemos aprendido que no debemos juzgar una casa simplemente por su fachada, aunque lógicamente se trata de algo puede decirnos mucho sobre una construcción, invitándonos a imaginar lo que esconden celosamente sus muros.
Sin embargo, si viéramos la Casa Hannah desde la calle, jamás pensaríamos que su interior esconde todo un paraíso tropical. Todo ello en un ambiente moderno, casi vanguardista, haciéndonos ver que todos los elementos que componen toda la construcción tienen un objetivo.
Un trabajo realizado por los arquitectos Francisco Bernés Aranda y Fabián Gutiérrez Cetina, del estudio «Workshop, Diseño y Construcción«, cuyas fotos podemos ver a través de su web.
¿Queréis adentraros con nosotros tras esta maravilla arquitectónica? Bien, comencemos:
La Casa Hannah, un pequeño Edén de 86 m²
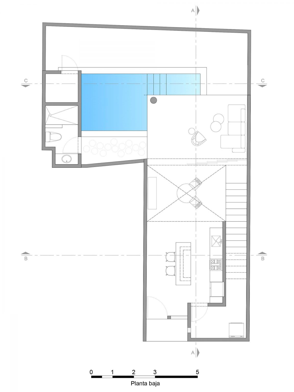
La Casa Hannah, en Mérida, Yucatán, es un proyecto cuyo fin es el de maximizar la sensación espacial, jugando con dobles alturas e integrando el exterior con el interior.
El terreno, de apenas 105 m², acoge una vivienda tipo estudio, diseñada como residencia vacacional para sus propietarios. Al tratarse de un espacio reducido, la meta principal del proyecto consistía en crear sensaciones espaciales, de amplitud y confort, donde todas las miradas confluyeran hacia la parte exterior.
El punto de acceso a la vivienda es desde la cocina, la cual cuenta con una isla e integra un pequeño comedor para dos personas. Un espacio, además, de doble altura que invita a sus residentes a disfrutar de la maravillosa vista a los jardines mediante un gran ventanal. Allí, una pequeña piscina de chukum envuelve la zona, creando una atmósfera ideal para el disfrute del cálido clima yucateco.
Al fondo del terreno, se encuentra un área de servicios escondida detrás de una antigua puerta colonial y una fachada de piedra. Un espacio que, además de ser práctico, funciona como el remate visual idóneo para la zona de la terraza.
Casa Hannah pretende ser un espacio cómodo y funcional. Es una evocación a la arquitectura regional yucateca, mediante el uso de materiales tradicionales, pero incorporando un sentido contemporáneo en su volumetría y espacialidad.
Eso lo consigue jugando con las alturas y mediante el uso del cristal como un elemento protagónico. Además, la elección de colores neutros en suelos y paredes, generan un hermoso contraste con los muebles de madera y las plantas incorporadas.
Una vegetación que, como veis, se encuentra distribuida por todo el interior de la casa, creando una atmósfera casi selvática en este pequeño rincón tropical.
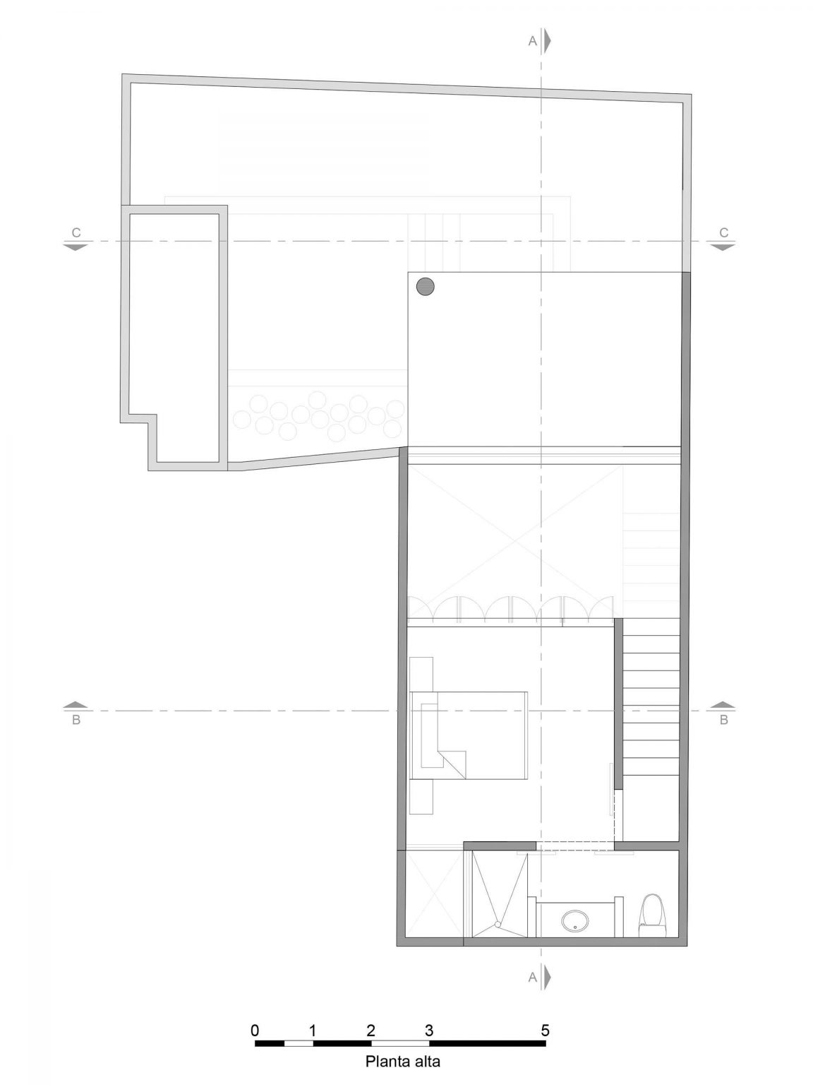
Arriba, en el entresuelo, un dormitorio y un baño
Sobre la cocina, en el entresuelo, se encuentra el único dormitorio de la vivienda. Este cuenta con un baño completo, integrado a un pequeño jardín donde las celosías de la fachada permiten que los vientos dominantes del norte recorran la casa en tu totalidad.
Desde la habitación, aprovechando la doble altura del ventanal del comedor, se tiene una vista privilegiada de las copas de los árboles frutales de los patios de las casas colindantes.
Planos de la vivienda
¿Y bien, qué os ha parecido la Casa Hannah? Sin duda alguna, a nuestro modo de ver, es todo un espacio vacacional utópico del que no querríamos salir.
















